*Scroll pricing table to the left to view all pricing
| PRICING | STARTING FROM THE: | MODEL HOME AS DISPLAYED: |
|---|---|---|
| HUD BUILDING CODE (Doublewide) | Not Available | Not Available |
| STATE BUILDING CODE (Modular) | $195’s | Not on Display |
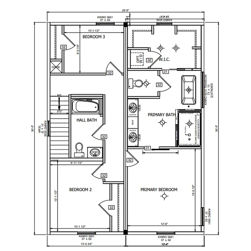
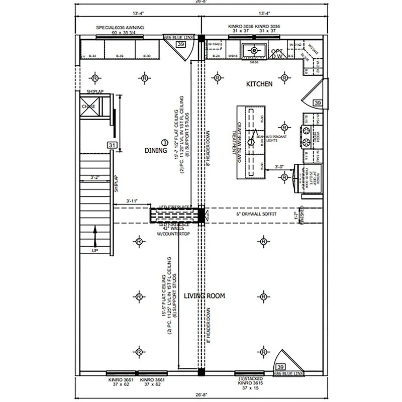
Discover The Fort Worth Barndo II—a stunning 2-story home that blends barndominium charm with modern comfort. This popular model features a wide open floorplan perfect for entertaining, with seamless flow from the spacious kitchen to the inviting living area. Designed for flexibility, The Fort Worth Barndo II easily adapts to your needs. The master suite is truly exceptional, providing a private retreat with luxurious finishes. Whether you’re hosting friends or relaxing with family, The Fort Worth Barndo II offers the ideal balance of rustic appeal and contemporary convenience—all in a single-level design you’ll love to call home.


